Memiliki rumah mungil bukan berarti harus mengorbankan kenyamanan dan estetika. Desain Rumah Hook 1 Lantai berukuran 8 x 8,5 meter ini membuktikan bahwa luas terbatas pun bisa tetap terasa lega, sehat, dan tampil menawan jika dirancang dengan konsep yang tepat. Rumah ini cocok untuk keluarga muda, pasangan baru menikah, atau siapa pun yang ingin membangun rumah pertama yang efisien, fungsional, dan tetap estetik.
Tampak Depan Tropis Modern yang Menarik
Tampak depan rumah ini mengusung gaya tropis modern dengan sentuhan atap pelana asimetris yang memberi kesan unik dan berbeda dari rumah kebanyakan. Tidak hanya dari bentuk atap, permainan elemen pada fasad pun terasa menarik berkat perpaduan cat warna netral, batu alam, serta kisi-kisi vertikal yang ditata secara proporsional. Hasilnya adalah fasad yang kaya secara visual namun tetap bersih dan elegan.
Desain ini sangat cocok untuk iklim Indonesia karena tetap memperhatikan ventilasi alami, pencahayaan cukup, dan perlindungan terhadap panas matahari—ciri khas desain tropis yang efektif dan efisien.

Rumah Mungil dengan Tata Ruang yang Fungsional
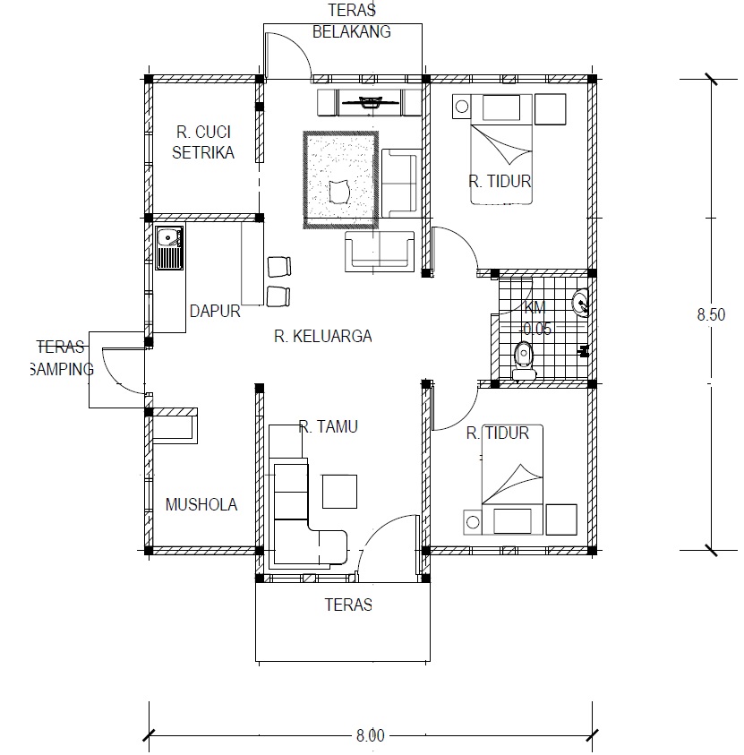
Dengan luas bangunan sekitar 67,5 m², rumah ini berhasil mengakomodasi berbagai kebutuhan dasar keluarga kecil dengan penataan ruang yang efisien. Pembagian ruang di dalamnya mencakup:
- 2 kamar tidur yang cukup lega dan tetap memiliki bukaan jendela ke luar.
- Ruang keluarga di bagian tengah yang menjadi pusat interaksi.
- Ruang makan dan dapur yang menyatu di bagian belakang rumah.
- Mushola sebagai ruang ibadah yang nyaman dan tenang.
- 3 teras—teras depan, teras samping, dan teras belakang—yang menambah area duduk santai sekaligus memperlancar sirkulasi udara.
- Ruang cuci dan strika di belakang yang tidak terlihat dari ruang utama.
Meski kecil, setiap ruang dalam rumah ini mendapat akses pencahayaan dan udara langsung dari luar, sehingga rumah terasa terang dan segar sepanjang hari.
Konsep Ruang Tanpa Sekat: Blong hingga Belakang
Salah satu daya tarik utama dari desain ini adalah konsep ruang terbuka atau ruang menerus dari depan hingga ke belakang rumah. Ruang tamu, ruang keluarga, ruang makan, dan dapur didesain menyatu tanpa sekat, menciptakan ilusi ruang yang lebih luas. Efek visual ini sangat penting dalam rumah kecil karena mampu menghindarkan kesan sempit dan sesak.
Selain itu, karena tiap ruang memiliki jendela atau bukaan langsung ke luar, maka udara bisa mengalir lancar dan cahaya alami masuk dengan optimal. Ini adalah salah satu prinsip penting dalam arsitektur tropis—memastikan rumah tidak bergantung sepenuhnya pada lampu atau pendingin ruangan.

Plafon Tinggi Bikin Adem dan Megah
Desain ini menggunakan plafon setinggi 3,5 meter, lebih tinggi dari standar rumah pada umumnya. Plafon tinggi memiliki banyak manfaat. Selain membuat rumah terasa lebih megah dan lapang, ia juga memperbesar volume udara dalam ruangan, sehingga suhu di dalam rumah cenderung lebih stabil dan adem meskipun tanpa AC.
Pada rumah-rumah kecil, plafon tinggi seperti ini juga sangat membantu menghindari rasa sesak—bahkan dengan jumlah furnitur yang cukup banyak sekalipun.

Dapur Sehat dengan Bukaan Jendela
Tidak seperti desain rumah kecil pada umumnya yang kadang mengorbankan ventilasi dapur, rumah ini tetap memperhatikan pentingnya sirkulasi udara di dapur. Dengan jendela yang menghadap langsung ke luar, asap dan bau dari aktivitas memasak bisa langsung terbuang ke luar, menjaga udara dalam rumah tetap segar dan sehat.
Memaksimalkan Lahan Hook
Yang membuat rumah ini semakin menarik adalah kemungkinan posisinya berada di lahan hook (pojok). Ini memungkinkan rumah memiliki dua sisi tampak, yang secara otomatis menambah banyak keuntungan:
- Fasad terlihat lebih atraktif karena bisa dikembangkan dua arah.
- Sirkulasi udara lebih lancar karena bukaan bisa dari dua sisi.
- Cahaya alami masuk lebih maksimal, membuat rumah terang sepanjang hari.
- Teras samping bisa menjadi area santai atau akses tambahan yang memperkaya pengalaman ruang.
Hook adalah nilai tambah tersendiri bagi rumah kecil, karena membuka lebih banyak peluang desain, pencahayaan, dan aliran udara.


Estimasi Biaya Pembangunan
Berdasarkan perhitungan umum, total Rencana Anggaran Biaya (RAB) dari desain ini berkisar Rp 229.000.000,-. Tentu, angka ini bisa berbeda tergantung lokasi proyek, harga material, dan biaya tukang setempat. Tapi dengan desain yang sudah matang, Anda dapat mengontrol biaya lebih baik dan menghindari salah bangun atau perubahan di tengah jalan yang bisa menyebabkan pemborosan.
Kesimpulan: Rumah Kecil, Desain Cerdas, Hidup Nyaman
Rumah ini adalah contoh bahwa desain yang cerdas bisa mengalahkan keterbatasan lahan. Dengan konsep ruang terbuka, ventilasi maksimal, dan permainan elemen tropis modern pada fasad, rumah ini bukan hanya cantik, tapi juga nyaman dan sehat untuk ditempati.
Jika Anda sedang mencari inspirasi rumah kecil yang hemat biaya, fungsional, dan tetap tampil memikat, desain ini layak jadi pertimbangan utama.
📞 Ingin mendapatkan gambar desain ini lebih lengkap untuk rumah impian Anda?
Yang terdiri dari:
– Gambar 3D facade.
– Gambar kerja terukur untuk pelaksanaan pembangunan.
– RAB (Estimasi Rencana Anggaran Biaya Membangun).
Silahkan klik tombol WhatsApp di bawah halaman untuk order langsung :

Penulis : desainrumahonline.com
Jasa Arsitek Secara Online : Kunjungi Desainrumahonline.com
Referensi Resmi : 9 Poin Penting Mengapa Perlu Jasa Arsitek Untuk Membangun Rumah


Tinggalkan Balasan